4
$145,000 Sale
Listed 8 hours ago
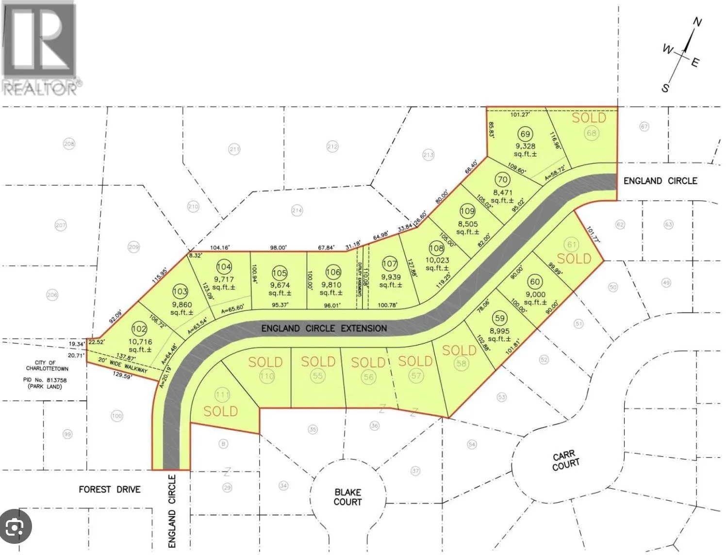
Lot 109 England Circle
· 0
· 0.0
· 0
· -
Key Facts
Key facts for Lot 109 England Circle
Property Type
Lots/Land
Parking
Garage: No, 0 parking
MLS #
202526938
Size
-
Basement
-
Listed on
-
Lot size
-
Tax
-
Days on Market
-
Year Built
-
Maintenance Fee
-
Description
A great location residential lot in a highly sought after subdivision in Charlottetown forsale! The lot is fully serviced with underground electrical and is located only minutes from commercial areas, restaurants, supermarkets and close to the best schools in Charlottetown. This lot situated in a q...uiet neighbourhood. (id:10452)
Similar Properties (No results)
Listing courtesy of: NORTHERN LIGHTS REALTY LTD.
This REALTOR.ca listing content is owned and licensed by REALTOR® members of The Canadian Real Estate Association.